Компанія TWEKO реалізувала проєкт розробки, виготовлення, постачання та введення в експлуатацію комплексу абразивоструменевого очищення та фарбувально-сушильної камери для машинобудівного підприємства. Метою проєкту було впровадження контрольованого технологічного процесу підготовки та фарбування великогабаритних виробів, включаючи очищення поверхні, нанесення покриття та сушку. У результаті замовник отримав інтегрований комплекс, що забезпечує стабільність параметрів процесу та органічно вписується в існуючу виробничу інфраструктуру.
Про клієнта
Підприємство важкого машинобудування з багаторічним досвідом виготовлення великогабаритних металоконструкцій і верстатного обладнання. Технологічні процеси включають зварювання, механічну обробку та підготовку поверхні під нанесення лакофарбових покриттів. Для забезпечення стабільної якості покриття на виробах значних розмірів виникла потреба у впровадженні контрольованих умов очищення та фарбування.
Запропоноване рішення
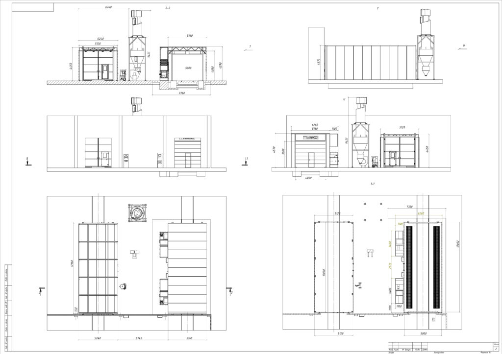
Спеціалісти TWEKO реалізували інтегрований технологічний комплекс на базі камери абразивоструменевого очищення KASO та фарбувально-сушильної камери серії IKFS. Рішення адаптовано для обробки великогабаритних виробів довжиною до 12 м з урахуванням особливостей виробництва замовника.
Комплекс забезпечує послідовний цикл підготовки поверхні, нанесення покриття та сушки із розділенням «брудних» і «чистих» технологічних процесів. Камери працюють автономно та інтегровані в єдину виробничу логіку, що дозволяє підтримувати стабільні параметри повітряного середовища на кожному етапі обробки.

Камера абразивоструменевого очищення моделі KASO-7 оснащена автономною системою аспірації з функцією регенерації абразиву, що включає циклон та фільтраційний вузол. Робоча зона камери становить 12 000 × 4 800 × 3 580 мм, що дозволяє обробляти великогабаритні вироби. Продуктивність аспіраційної системи досягає 20 000 м³/год, при цьому ефективність очищення повітря становить до 96–99%.
Система забезпечує безперервне видалення пилу із робочої зони та автоматичну сепарацію абразиву з подальшим поверненням у цикл. Використання циклону дозволяє відокремлювати важку фракцію, а фільтраційний вузол — очищати повітря перед викидом у навколишнє середовище. Потужність приводу аспіраційної установки становить до 30 кВт, рівень шуму зовні камери — до 70 дБ.
Робота обладнання передбачає одночасне виконання операцій очищення, аспірації та регенерації абразиву, що забезпечує стабільність процесу підготовки поверхні та зменшення витрат абразивного матеріалу.

Фарбувально-сушильна камера моделі IKFS-14 обладнана припливно-витяжною вентиляцією з повітрообміном до 52 000 м³/год, що забезпечується двома припливними вентиляційними установками потужністю по 11 кВт та витяжною установкою 7,5 кВт. Робоча зона камери становить 12 000 × 5 000 × 4 000 мм, що дозволяє обробляти великогабаритні вироби.
Система підготовки повітря включає багаторівневу суху фільтрацію (попередня, стельова, підлогова), що забезпечує ступінь очищення до 96,7% та подачу рівномірного повітряного потоку в робочу зону. У режимі фарбування підтримується надлишковий тиск у межах 10–30 Па, що запобігає потраплянню пилу ззовні.
Для сушіння застосовано електричний нагрів на базі оребрених ТЕНів (до 60 елементів) із максимальною температурою до 80°C. У цьому режимі реалізовано рециркуляцію повітря з послідовними етапами: продувка, нагрів, сушка та охолодження, що забезпечує стабільність температурного режиму та енергоефективність процесу.

Комплекс реалізовано з розділенням технологічних зон: камера абразивоструменевого очищення працює автономно від фарбувально-сушильної камери та оснащена окремою системою аспірації з регенерацією абразиву. Між камерами передбачено технологічну буферну зону (~6,7 м), що мінімізує перенесення пилу та забезпечує розділення «брудного» і «чистого» процесів. Керування комплексом здійснюється за допомогою програмованого логічного контролера з контролем температури, тиску, часу сушки та режимів роботи обладнання.


Результати проєкту
- Забезпечено безперервний технологічний цикл обробки виробів
- Покращено якість підготовки поверхні перед фарбуванням
- Оптимізовано витрати абразиву за рахунок рециркуляції
- Зменшено вплив пилу на процес фарбування
- Покращено умови праці персоналу
- Підвищено керованість процесу за рахунок автоматизації
Реалізований комплекс забезпечує виконання повного циклу підготовки та фарбування великогабаритних виробів, характерних для підприємств важкого машинобудування — станин, рам, корпусів та інших металоконструкцій. Контрольовані параметри повітряного середовища та розділення технологічних зон дозволяють стабілізувати якість покриття на виробах значної маси та складної геометрії.
Рішення інтегровано в існуючу виробничу інфраструктуру та може бути застосоване на підприємствах машинобудування, енергетики та металургії, де критичними є процеси підготовки поверхні та антикорозійного захисту великогабаритних виробів.
Потрібне рішення для підготовки поверхні та фарбування великогабаритних виробів на машинобудівному підприємстві? Звертайтеся до спеціалістів TWEKO — ми підберемо комплекс обладнання відповідно до габаритів, технології та виробничих задач вашого підприємства.



