TWEKO успішно ввела в експлуатацію сучасний малярно-сушильний комплекс на базі двох фарбувально-сушильних камер серії AKFS Standart для одного з провідних українських виробників технологічних рішень. Кожна камера забезпечує повний цикл: якісне нанесення лакофарбових матеріалів та контрольоване сушіння складних металевих конструкцій. Завдяки системі сухої фільтрації з багатоступеневою очисткою повітря та підтриманню надлишкового тиску в робочій зоні, комплекс гарантує стабільно високу якість покриття навіть на виробах складної геометрії.
Про клієнта
Науково-виробниче об’єднання у сфері приладобудування та системної інтеграції. Компанія забезпечує повний цикл створення складної техніки — від R&D та проектування до серійного виробництва. Підприємство є ключовим партнером державних інституцій у питаннях технологічної безпеки та імпортозаміщення. Технологічні процеси включають обробку та фарбування металевих виробів із підвищеними вимогами до якості та рівномірності покриття.
Завдання
Завданням проєкту було забезпечити фарбування великогабаритних виробів у контрольованому повітряному середовищі з можливістю реалізації окремого циклу сушіння з регульованою температурою, організувати багатоступеневу фільтрацію повітря та підтримання надлишкового тиску в камері на рівні 30–60 Па, забезпечити рівномірний вертикальний повітряний потік, інтегрувати автоматичне керування процесами, а також передбачити можливість роботи з важкими виробами з навантаженням до 600 кг на колесо.

Запропоноване рішення
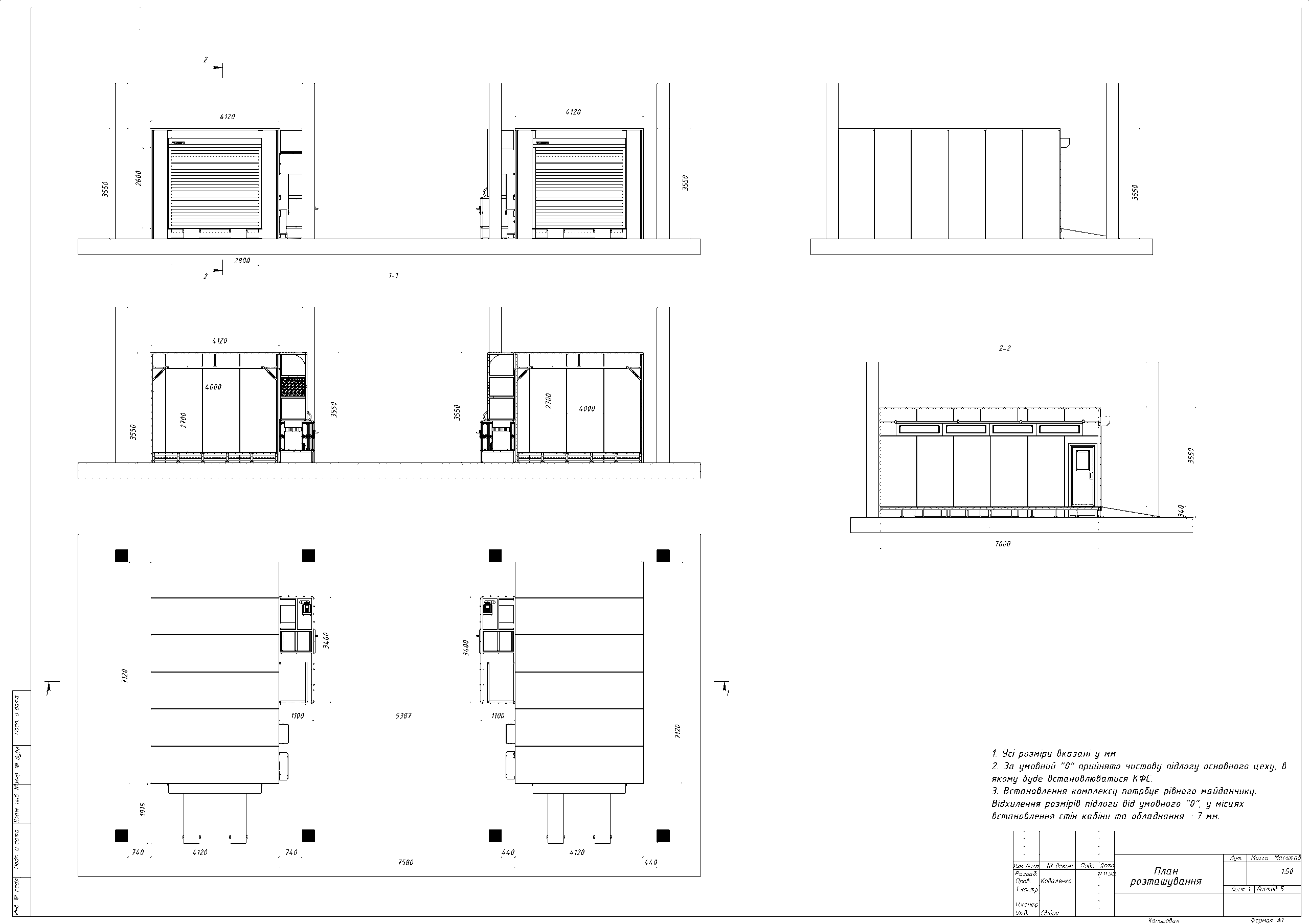
TWEKO реалізувала фарбувально-сушильний комплекс на базі двох ідентичних камер серії AKFS, модель AKFS-S-7. Кожна камера має робочу зону 7000 × 4000 × 2700 мм, що дозволяє обробляти великогабаритні металеві конструкції.
Продуктивність вентиляційної системи становить до 22 000 м³/год. Загальна встановлена потужність однієї камери — до 135 кВт. Рівень шуму становить близько 65 дБ у робочій зоні.
Камери забезпечують повний цикл: фарбування та сушіння. Завдяки ідентичній конфігурації організовано паралельну, що дозволяє підвищити пропускну здатність ділянки та мінімізувати простої.
Термо-вентиляційна система кожної камери оснащена електричним теплообмінником і працює в режимі рециркуляції повітря під час сушіння, що забезпечує стабільний температурний режим і знижує енергоспоживання.
У режимі фарбування реалізовано вертикальний повітряний потік: подача через стельові фільтри та відведення через підлогові. Така схема забезпечує ефективне видалення фарбувального аерозолю та рівномірне нанесення покриття.
Система вентиляції включає припливну та витяжну установки з частотним регулюванням, що дозволяє підтримувати стабільний повітряний баланс і необхідний надлишковий тиск у робочій зоні.
Фільтрація повітря реалізована за багатоступеневою схемою: попереднє очищення, стельові фільтри тонкої очистки та підлогові фільтри для уловлювання аерозолю.
Керування процесами здійснюється за допомогою програмованого логічного контролера (PLC) з можливістю налаштування температури, часу сушіння та параметрів роботи вентиляції.
Результати впровадження
У результаті реалізації проєкту підприємство отримало стабільний і контрольований цикл фарбування та сушіння великогабаритних виробів. Процес нанесення лакофарбового покриття став рівномірним і відтворюваним.
Завдяки використанню рециркуляції повітря оптимізовано енергоспоживання, а підтримання надлишкового тиску в робочій зоні зменшило потрапляння пилу та забруднень у камеру.
Впроваджений комплекс забезпечив виконання технологічних вимог до фарбування виробів із підвищеними вимогами до якості покриття та інтегрований у виробничий процес підприємства.
Потрібне рішення для фарбування великогабаритних виробів?
Підберемо конфігурацію обладнання під ваші габарити, технологію та вимоги до процесу.

