Компанія TWEKO виготовила та поставила фарбувальну камеру серії FPS для виконання робіт з підготовки та нанесення лакофарбових покриттів у навчально-виробничих умовах. Рішення орієнтоване на забезпечення стабільного процесу фарбування виробів у контрольованих умовах повітряного середовища.
Про клієнта
Замовник — Радивилівський професійний ліцей (Рівненська область), державний заклад професійно-технічної освіти, розташований у м. Радивилів Рівненської області. Ліцей готує кваліфікованих фахівців за різними технічними спеціальностями, зокрема в галузі металообробки, зварювання та малярних робіт.
Для організації практичних занять необхідне сучасне обладнання, яке забезпечує реальні виробничі умови.
Постановка задачі
- Забезпечити організований припливно-витяжний повітрообмін з продуктивністю до 6000 м³/год для видалення фарбового аерозолю
- Реалізувати багатоступеневу систему сухої фільтрації (префільтр, стельовий, картонний/лабіринтний, скловолоконний)
- Забезпечити стабільні температурні умови з можливістю підігріву повітря (до +30°C)
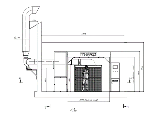
- Організувати робочу зону з габаритами 3000×2500×2500 мм з урахуванням обмежень приміщення
- Передбачити систему керування з базовими функціями: запуск/зупинка, контроль температури, індикація роботи та аварійних режимів
- Передбачити можливість технічного обслуговування обладнання
Запропоноване рішення
Для виконання поставлених задач обрано відкритий фарбувальний пост серії FPS у компактному виконанні моделі FPS-2, адаптованому під умови навчального приміщення. Конфігурація передбачає організацію контрольованого повітряного потоку через робочу зону з використанням припливно-витяжної вентиляції та верхнього подавання повітря через стельовий пленум.
Система побудована за схемою з подаванням очищеного повітря через стельовий фільтр та відведенням повітря через витяжні фільтрувальні елементи. Для очищення повітря використано багатоступеневу суху фільтрацію, що забезпечує затримання частинок пилу та фарбового аерозолю.
Температурний режим забезпечується електричними нагрівачами припливного повітря, що дозволяє підтримувати температуру до +30°C. Камера оснащена системою керування з базовими функціями контролю та індикації режимів роботи.
Результати проєкту
- Організовано процес фарбування в контрольованих умовах
- Реалізовано систему вентиляції та очищення повітря
- Забезпечено стабільні температурні умови для виконання фарбувальних робіт
- Створено умови для проведення практичної підготовки учнів
Реалізоване рішення забезпечує виконання фарбувальних робіт у контрольованих умовах і може бути застосоване для навчальних закладів та підприємств із подібними задачами. Впровадження фарбувальної камери серії FPS дозволило організувати процес фарбування адаптований до навчально-виробничих умов і враховує обмеження приміщення.
Потрібна фарбувальна камера для вашого підприємства або навчального закладу? Звертайтеся до спеціалістів TWEKO — ми підберемо рішення відповідно до ваших задач.




