Компанія TWEKO реалізувала проєкт виготовлення та інтеграції модульного блоку кабін для персоналу для виробничого підприємства. Рішення передбачало створення ізольованих робочих приміщень у діючому виробничому цеху з підключенням до інженерних мереж підприємства. Основною задачею було забезпечення комфортних і безпечних умов праці персоналу (ВТК, інженерів та допоміжних служб) в умовах впливу виробничих факторів. У межах проєкту реалізовано чотири модульні кабіни з припливно-витяжною вентиляцією продуктивністю 925 м³/год, рекуперацією тепла до 80% та локальним кондиціюванням. Система інтегрована в існуючу вентиляційну мережу цеху з використанням повітропроводів діаметром 200–250 мм.
Про клієнта
Підприємство працює у сфері машинобудування та спеціалізується на виготовленні металевих виробів із підвищеними вимогами до точності та якості. Виробничі процеси супроводжуються пилом, шумом та іншими факторами, що ускладнюють організацію комфортних робочих місць безпосередньо в цеху. У таких умовах виникла потреба у створенні ізольованих приміщень для інженерного та контролюючого персоналу з контрольованим мікрокліматом.

Рішення
Перед TWEKO було поставлено низку технічних задач: створити ізольовані приміщення всередині діючого цеху, забезпечити нормативні параметри мікроклімату, інтегрувати вентиляцію у вже існуючі інженерні системи підприємства, реалізувати енергоефективне рішення з рекуперацією тепла, а також забезпечити модульність конструкції без виконання капітальних будівельних робіт. Додатково необхідно було передбачити можливість подальшої модернізації та розділити функціональні зони (кімната ВТК, кабінет, складські приміщення).
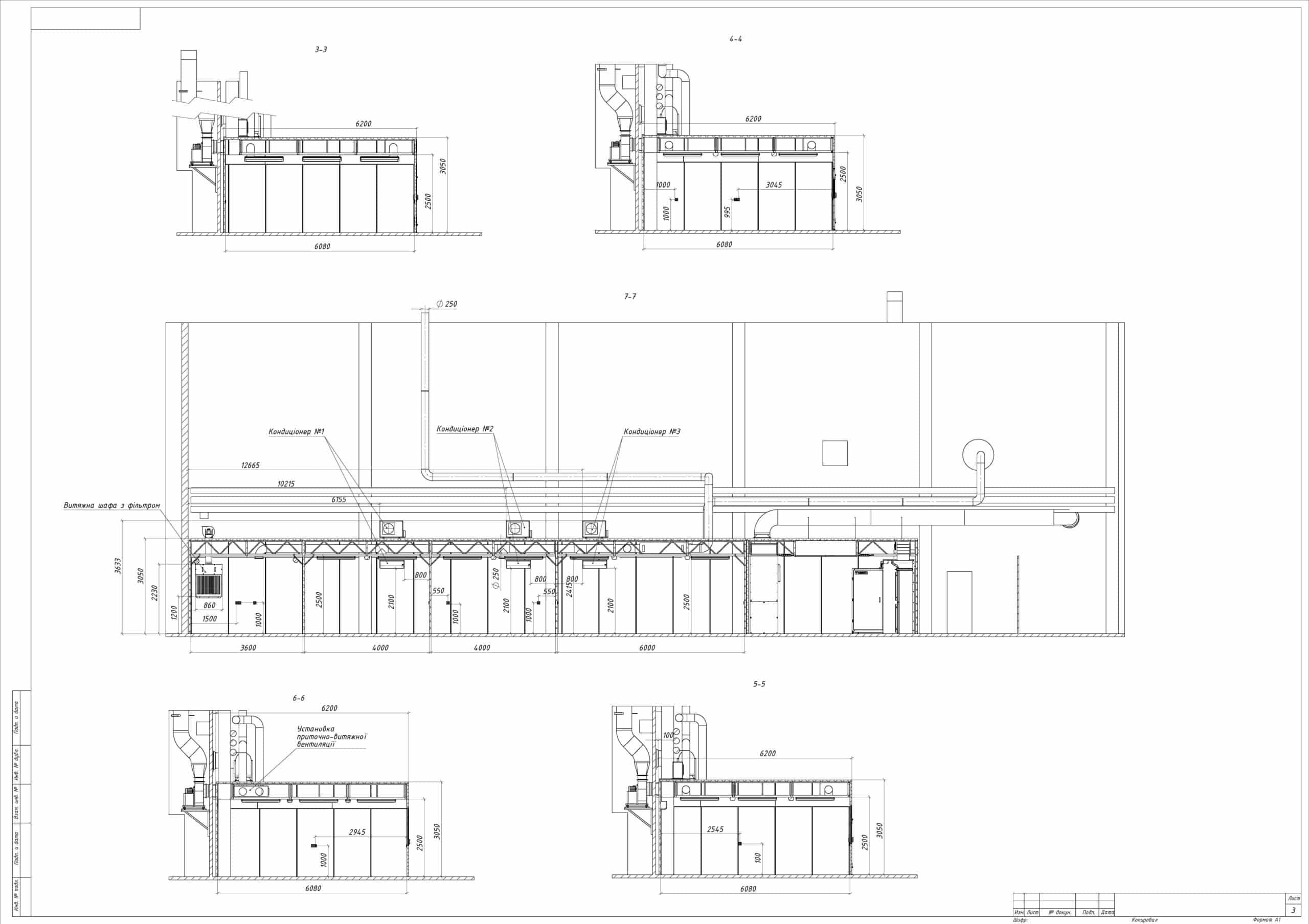
У якості рішення було обрано модульний блок із чотирьох кабін на основі металевого каркасу з огороджувальними сендвіч-панелями товщиною 50–60 мм. Конструкція монтується без капітальних змін у будівлі та може бути демонтована або адаптована під нові задачі. Інженерна частина включає централізовану припливно-витяжну вентиляцію з розподілом повітря через магістральні повітропроводи, які проходять уздовж кабін і підключаються до існуючої системи вентиляції підприємства. Вентиляційна установка винесена за межі робочих приміщень, що дозволяє знизити рівень шуму та спростити обслуговування. Для підтримання температурного режиму в кожній кабіні встановлено локальні кондиціонери.

Загальні габарити блоку становлять приблизно 10 000 × 5 740 × 3 000 мм. Розміри окремих кабін варіюються від 6140 × 3680 мм до 6140 × 6000 мм залежно від функціонального призначення. Конструкція виконана з металевого каркасу та сендвіч-панелей з мінераловатним наповнювачем, що забезпечує тепло- та звукоізоляцію. Вентиляція — припливно-витяжна, збалансована, з продуктивністю 925 м³/год. Передбачено пластинчасту рекуперацію тепла з ефективністю до 80%. Для попереднього очищення повітря використовуються фільтри класу G4. Система працює від електромережі 220/380 В, а освітлення виконане на базі LED-світильників.

Принцип роботи системи полягає в подачі свіжого повітря від вентиляційної установки через магістральні повітропроводи до кожної кабіни. Повітря розподіляється через відгалуження, після чого відпрацьоване повітря збирається у витяжну систему. У рекуператорі частина теплової енергії повертається, після чого повітря викидається назовні. Температурний режим у приміщеннях додатково регулюється локальними кондиціонерами.
Результат проекту
У результаті реалізації проєкту вдалося створити ізольовані робочі зони для персоналу без втручання у виробничий процес. Покращено умови праці, зменшено вплив пилу та інших виробничих факторів, а також забезпечено енергоефективність за рахунок використання рекуперації. Рішення інтегроване у існуючу інфраструктуру підприємства та має модульну структуру, що дозволяє масштабувати або змінювати конфігурацію у майбутньому.
Такий підхід дозволяє організувати повноцінну інженерну інфраструктуру для персоналу у складних виробничих умовах без необхідності будівництва окремих приміщень.
Хочете створити комфортні умови для свого персоналу в цеху?
Компанія TWEKO реалізує модульні кабіни та інженерні рішення під ваші задачі — швидко, без капітального будівництва та з максимальним ефектом.