Компанія TWEKO реалізувала комплексний проєкт з розробки та виготовлення фарбувально-сушильної камери серії AKFS для іспанського клієнта RIOMAX GRUPO. Рішення забезпечує підготовку поверхні, нанесення лакофарбових матеріалів та сушіння виробів у контрольованому середовищі. Камера з робочою зоною 8600 × 4500 × 3340 мм оснащена системою сухої фільтрації та вентиляцією продуктивністю до 27 000 м³/год. Особливістю проєкту стала індивідуальна компоновка з боковим розміщенням термовентиляційного блоку, що дозволило інтегрувати обладнання в існуюче приміщення з обмеженим простором та мінімізувати довжину повітроводів. Додатково камера виготовлена у кольорах, адаптованих під корпоративний стиль замовника, а також оснащена ролетними воротами та винесеним пультом керування.
Про клієнта
RIOMAX GRUPO — іспанська автомобільна компанія з Каталонії (провінція Жирона), що працює у сфері автомобільного бізнесу та надає послуги з продажу, оренди, технічного обслуговування і ремонту транспортних засобів. Одним із ключових напрямів діяльності є кузовний ремонт і фарбування, що потребують стабільних технологічних умов та контролю якості покриття.
Виклик проєкту
У зв’язку з розширенням виробничих потужностей виникла потреба у впровадженні фарбувально-сушильного обладнання, яке забезпечує контроль параметрів повітряного середовища, стабільність процесів фарбування та відповідність технологічним вимогам.

Запропоноване рішення: інженерна адаптація під умови виробництва
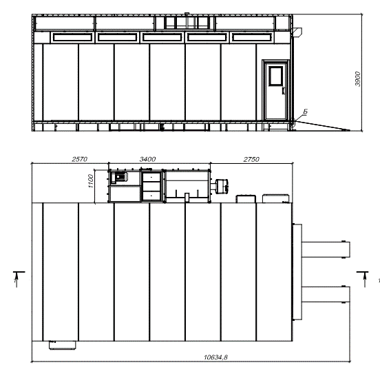
Для реалізації задачі RIOMAX GRUPO було обрано фарбувально-сушильну камеру серії AKFS моделі AKFS-S-9 із сухою фільтрацією. З урахуванням обмежень виробничого приміщення застосовано індивідуальну компоновку: камера встановлена впритул до стіни з боковим розміщенням термовентиляційного блоку. Це дозволило оптимізувати використання площі та скоротити довжину повітроводів.
Камера виготовлена у кольорах, адаптованих під корпоративний стиль замовника: сіре виконання з помаранчевими елементами замість стандартного світло-синього кольору TWEKO.
Додатково проєкт передбачає використання ролетних (roll-up) воріт та винесеного пульта керування, що забезпечує зручний доступ оператора та інтеграцію обладнання в існуючу виробничу інфраструктуру.
Технічні характеристики та оснащення
- Габарити робочої зони:
8600 × 4500 × 3340 мм — забезпечують можливість обробки легкових автомобілів та комерційного транспорту середньої бази. - Продуктивність:
Система вентиляції з продуктивністю до 27 000 м³/год забезпечує стабільний повітрообмін та підтримання надлишкового тиску 10–30 Па, що знижує ризик потрапляння пилу в зону фарбування. - Термічна підготовка:
Дизельний пальник у поєднанні з теплообмінником непрямого нагріву забезпечує досягнення робочих температур сушіння до 60°C з можливістю регулювання режимів. - Фільтрація:
Система багаторівневої сухої фільтрації (попередні, стельові, лабіринтні та скловолоконні фільтри) забезпечує очищення повітряного потоку на всіх етапах процесу. - Освітлення:
Світлодіодне освітлення (6500 лм) забезпечує достатній рівень освітленості робочої зони.

Експлуатаційні характеристики
Загальна встановлена потужність обладнання становить близько 20 кВт. Рівень шуму в робочій зоні не перевищує 65 дБ. Керування процесами фарбування та сушіння здійснюється через пульт управління з контролем температури, часу та тиску.
Результати проєкту
Впровадження фарбувально-сушильної камери AKFS-S-9 дозволило RIOMAX GRUPO організувати стабільний процес фарбування та сушіння в контрольованих умовах. Багаторівнева система фільтрації та підтримання надлишкового тиску знижують ризик потрапляння пилу в зону фарбування.
Режим рециркуляції повітря під час сушіння зменшує витрати енергії при збереженні стабільного температурного режиму. Індивідуальна компоновка забезпечила інтеграцію камери в існуюче приміщення без зміни загальної структури цеху.
Експлуатація обладнання відповідає вимогам до вентиляції, температурного контролю та безпечної роботи згідно з паспортом.
Реалізоване рішення забезпечує виконання повного циклу фарбування та сушіння з урахуванням обмежень виробничого приміщення та може бути адаптоване під інші виробничі задачі.
Маєте подібну задачу?
Ми підберемо конфігурацію обладнання з урахуванням параметрів вашого виробництва та умов розміщення.

