Фарбувальна камера для авто тралів – ТАД

pokrasochnaya kamera dlya avtotralov tad tweko 16

Реалізований проєкт: Фарбувальна камера для авто тралів - ТАД ▷ Компанія «Техсервіс ВЕКО»

У 2016 році TWEKO розробила та встановила фарбувально-сушильну камеру для ПП «ТРАНС-АВТО-Д» (ТАД) у Хмельницькій області. Камера забезпечує якісне фарбування автомобільних причепів-тралів, відповідаючи вимогам до фарбування великогабаритної техніки.

Початок співпраці

ПП «ТРАНС-АВТО-Д» — українська компанія, що спеціалізується на перевезенні негабаритних вантажів по Україні та за кордоном, а також на виробництві автомобільних причепів-тралів. Підприємство розташоване в місті Волочиськ, Хмельницька область. У 2016 році компанія звернулася до TWEKO із завданням модернізувати фарбувальний цех, щоб забезпечити якісне та ефективне фарбування тралів.

Реалізація проєкту

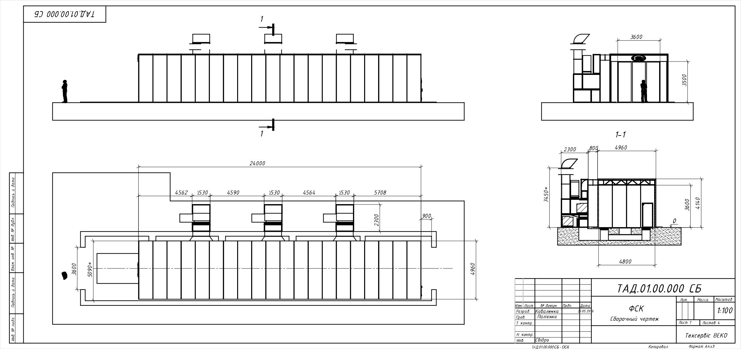
У межах цього проєкту TWEKO виготовила та встановила фарбувально-сушильну камеру, інтегровану в наявне приміщення замовника для максимально ефективного використання простору. Її внутрішні розміри становлять 24 000 × 5000 × 3500 мм, що дозволяє безперешкодно фарбувати великогабаритні причепи-трали. Монтаж було виконано у встановлені терміни. Як підтверджує наданий відгук, протягом трьох років експлуатації (2016–2019) не було зафіксовано жодної аварійної ситуації — камера працює стабільно та безвідмовно.

Обладнання

Фарбувально-сушильна камера виготовлена з сендвіч-панелей із наповнювачем із мінеральної вати товщиною 80 мм, що забезпечує надійну теплоізоляцію. Основні характеристики:

  • Розміри: внутрішні габарити 24 000 × 5000 × 3500 мм для обробки великогабаритних тралів.
  • Термовентиляційна система: три припливно-витяжні термовентиляційні шафи з відцентровими вентиляторами сумарною продуктивністю до 100 000 м³/год.
  • Нагрівання: електричні теплообмінники споживають до 270 кВт/год у режимі розгону, забезпечуючи дельту температури ~35°C при витраті повітря 100 000 м³/год.
  • Додаткові елементи: дворядкове освітлення, трирівнева система фільтрації повітря, тристулкові розсувні ворота, сучасні системи автоматики та керування.

Технологічні особливості

Камера обладнана центральним вентильованим приямком, який дозволяє оператору фарбувати трали з рівня підлоги без необхідності їх перевертати чи підіймати. Це значно економить час і спрощує процес. Електричні теплообмінники забезпечують стабільну підтримку заданої температури, а трирівнева система фільтрації гарантує високу якість покриття. Як зазначено у відгуку, камера повністю відповідає технічним вимогам, забезпечуючи безпечну та стабільну роботу.

Переваги

  1. Оптимізація простору завдяки розмірам 24 000 × 5000 × 3500 мм і вбудованій конструкції фарбувально-сушильних камер.
  2. Надійність: три роки безперервної експлуатації без аварій, що підтверджено у відгуку.
  3. Зручність завдяки вентильованому приямку, який дозволяє фарбувати з рівня підлоги без додаткового обладнання.
  4. Висока якість покриття завдяки трирівневій фільтрації та потужній вентиляції (100 000 м³/год).

ПП «ТРАНС-АВТО-Д» високо оцінило співпрацю з TWEKO, підкреслюючи стабільність роботи камери та якість отриманого результату:

За три роки активної експлуатації фарбувально-сушильної камери ми не зафіксували жодних аварійних ситуацій у роботі. Камера працює стабільно, забезпечуючи якісне покриття автомобілів. Можемо рекомендувати TWEKO як надійного партнера у сфері виробництва фарбувальних камер.
В.П. Мельник, директор ПП «ТРАНС-АВТО-Д»

Висновок

Проєкт 2016 року для ПП «ТРАНС-АВТО-Д» підтвердив здатність TWEKO створювати ефективне обладнання для фарбування тралів. Камера з розмірами 24 000 × 5000 × 3500 мм, вентильованим приямком і потужною термовентиляційною системою стала надійним рішенням для виробництва причепів-тралів, забезпечуючи високу якість фарбування, стабільність у роботі та оптимізацію технологічного процесу.

Також буде цікаво