Компания TWEKO успешно реализовала проект модернизации малярного участка для ведущего украинского производителя полотенцесушителей и дизайн-радиаторов из нержавеющей стали. На основе предварительного технического проекта было разработано, изготовлено и внедрено комплексное решение «под ключ» — полуавтоматический окрасочно-сушильный комплекс проходного типа. Результат — современная проходная линия с полным циклом подготовки поверхности, окрашивания и полимеризации, обеспечивающая стабильно высокое качество покрытия и соответствие требованиям сертифицированной системы менеджмента качества ISO 9001.
О клиенте
ООО «Производственное предприятие „Марио“» — один из лидеров украинского рынка полотенцесушителей и дизайн-радиаторов премиум-класса из нержавеющей стали. Компания работает с 1998 года, располагает собственным современным заводом в пгт Литин Винницкой области, полным циклом металлообработки и сертифицированной по ISO 9001:2015 системой менеджмента качества.
В 2018–2019 годах предприятие активно наращивало объемы производства и расширяло палитру декоративных покрытий. Это потребовало обеспечить 100-процентную повторяемость цвета и стабильность покрытия, снизить энергопотребление и оптимизировать логистику малярного участка, минимизировав влияние человеческого фактора.
Для решения этих задач «Марио» выбрало TWEKO в качестве единственного подрядчика по разработке, изготовлению и запуску комплекса, специально адаптированного под реальные условия и габариты существующего производственного помещения.
Задачи проекта
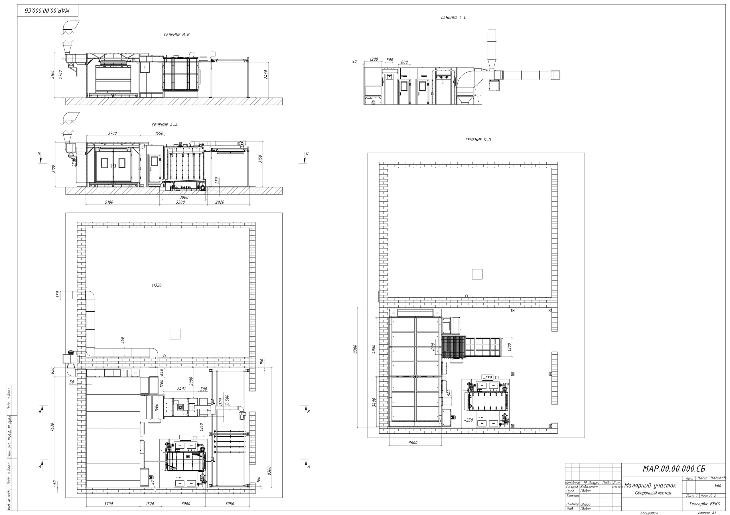
В 2019 году ООО «Производственное предприятие „Марио“» поставило перед TWEKO комплексную задачу — спроектировать, изготовить и внедрить современный окрасочно-сушильный комплекс проходного типа для полного цикла подготовки поверхности, нанесения и полимеризации декоративного лакокрасочного покрытия на полотенцесушителях и дизайн-радиаторах. Комплекс должен был быть полностью адаптирован к существующим производственным площадям предприятия и обеспечивать обработку изделий габаритами до 1 860 × 800 × 350 мм и массой до 10 кг.
Ключевые требования Заказчика:
- разработать и согласовать техническое решение с учетом реальных габаритов изделий и существующего участка;
- обеспечить полный цикл: полуавтоматическое обезжиривание + промывка → промежуточная сушка → окрашивание водорастворимыми эмалями в электростатическом поле → полимеризация при 150–180 °C продолжительностью до 20 минут;
- объединить четыре технологические зоны в единый проходной технологический поток;
- реализовать подвесную транспортную магистраль бесконечного типа с ручным перемещением и поворотными каретками (360°);
- поддерживать температуру в рабочих зонах +18…+24 °C и оптимизировать энергопотребление;
Решение
На основе согласованного предварительного технического проекта компания TWEKO разработала, изготовила и ввела в эксплуатацию индивидуальный окрасочно-сушильный комплекс проходного типа, полностью адаптированный под ограниченное пространство действующего цеха предприятия «Марио».

Комплекс состоит из четырех основных технологических модулей и двух вспомогательных зон, объединенных единой подвесной транспортной системой
Подвесная магистраль бесконечного типа с ручным перемещением обеспечивает непрерывное движение изделий через все технологические зоны комплекса. Система включает:
- 12 поворотных кареток с механизмом вращения на 360° — для равномерного окрашивания изделий со всех сторон;
- по 5 накопительных перегрузочных кареток в зонах загрузки/выгрузки и сушки.
Транспортная магистраль спроектирована с учетом габаритов изделий (до 1 860 × 800 × 350 мм) и массы до 10 кг, а также особенностей их фиксации на крюках подвесов. Конструкция предусматривает изменение направления движения кареток и адаптацию геометрии под реальные условия цеха. Монорельсовые участки выполнены в виде одного или двух параллельных профилей (с межосевым расстоянием 500 мм) в зависимости от зоны.
В транспортной системе используются европейские комплектующие (рейки, ролики, узлы кареток), что обеспечивает долговечность, плавность перемещения и минимальные требования к обслуживанию.
Полуавтоматическая камера мойки струйного (обливного) типа модели КМП предназначена для подготовки металлических изделий перед окрашиванием и обеспечивает стабильное качество очистки в полузамкнутом цикле. Конструктивно камера представляет собой термоизолированный модуль с системой контурного облива, в котором обработка осуществляется за счет интенсивной подачи растворов на изделие через форсунки высокой производительности. Две последовательные стадии — химическое обезжиривание и промывка — выполняются без перемещения изделия, что снижает трудоемкость и обеспечивает повторяемость результата.
Внутри камеры организована принудительная циркуляция рабочих растворов с рециркуляцией, фильтрацией и автоматическим поддержанием параметров, что позволяет работать в стабильном технологическом режиме. Механизм дверей и цикл обработки управляются автоматически, при этом оператор выполняет только загрузку и выгрузку изделий. Система оснащена современной панелью управления, позволяющей задавать продолжительность этапов, контролировать состояние оборудования и выполнять сервисные операции.
Камера мойки интегрируется в проходной окрасочно-сушильный комплекс и соответствует требованиям к предварительной подготовке поверхности перед нанесением водорастворимых и полимерных покрытий, обеспечивая равномерную очистку и повышение адгезии последующих слоев.

| Параметр | Значение |
|---|---|
| Габариты и конструкция | |
| Внутренние рабочие размеры (Д × Ш × В) | 2 400 × 900 × 1 800 мм |
| Габаритные размеры (Д × Ш × В) | 3 000 × 3 300 × 3 300 мм |
| Масса (без растворов) | 820 кг |
| Технологические параметры | |
| Количество стадий обработки | 2 (щелочное обезжиривание + промывка) |
| Суммарный объем баков | 1 900 литров |
| Диапазон температуры растворов | 0–80 °C |
| Автоматизация и комплектация | |
| Насосы | 3 шт. Pedrollo (Италия) |
| Пневмосистема | Camozzi и Omal (Италия) |
| Управление | Сенсорная панель (Автомат / Наладка / Обслуживание) |
| Режим дверей | Автоматический или ручной |
| Дополнительные функции | Рециркуляция и фильтрация 1-го контура, автоматические паузы на стекание |
| Электропитание и эксплуатация | |
| Установленная мощность | 38 кВт |
| Питание | 380 В, 3 фазы + N + PE, 50 Гц |
| Давление сжатого воздуха | 6–10 бар |
| Климатическое исполнение | УХЛ4 (+5…+40 °C) |
| Гарантия | 12 месяцев |
Кабина из сэндвич-панелей с тепло- и шумоизоляцией имеет общую длину ≈ 8 300 мм и объединяет в одном проходном модуле две ключевые технологические зоны — промежуточную сушку и окрашивание. Такая конфигурация обеспечивает непрерывный поток изделий без остановок между операциями и позволяет компактно интегрировать комплекс в существующий цех без дополнительных строительных работ.

1. Зона промежуточной сушки
Расположена непосредственно после мойки. Обеспечивает стекание остатков растворов и интенсивную сушку изделий подогретым воздухом. Критически важна для предотвращения образования капель и остаточной влаги перед нанесением покрытия.
- приточно-вытяжная вентиляция с подогревом воздуха;
- «активный пол» с решётками и постоянным водяным потоком — максимальная чистота зоны;
- система фильтрации для поддержания беспылевой среды.
2. Зона окрашивания
Основная рабочая зона с избыточным давлением, в которой выполняется электростатическое нанесение водорастворимых эмалей. Камера оснащена приточно-вытяжной вентиляцией с подогревом воздуха до 18–24 °C, потолочными фильтрами тонкой очистки и обеспечивает кратность воздухообмена до 200 раз/ч.
Удаление аэрозоля осуществляется через вытяжной шкаф с гидроэкраном AS Hydro (степень очистки ≥ 97 %). Система включает водяное «зеркало», форсунки для формирования водяного тумана, циркуляционный насос и приёмную ванну с возможностью применения коагулянта/флокулянта.
Активный пол с постоянным водяным потоком улавливает избыточный лакокрасочный туман. Тепловентиляционная установка с центробежным вентилятором обеспечивает равномерную подачу очищенного воздуха.
Освещение, системы автоматики, пульт управления и датчики контроля гарантируют безопасную и стабильную работу в процессе нанесения покрытия.
Такая конструкция обеспечивает стабильное качество покрытия, минимизирует затраты на очистку и соответствует самым высоким экологическим и санитарным требованиям.
| Параметр | Значение |
|---|---|
| Габариты и конструкция | |
| Общая длина участка (сушка + окрашивание) | ≈ 8 300 мм |
| Рабочие размеры зоны окрашивания | 4 000 × 4 000 × 2 500 мм |
| Тип камеры | Проходная, с избыточным давлением |
| Корпус | Сэндвич-панели с тепло- и шумоизоляцией |
| Вентиляция и воздухообмен | |
| Производительность вентиляции | до 10 000 м³/ч (регулируемая) |
| Кратность воздухообмена | до 200 раз/ч |
| Фильтрация приточного воздуха | EU5 (предварительные карманные + потолочные фильтры) |
| Очистка выбросного воздуха | |
| Система очистки | Водяная завеса + гидрофильтр (форсунки) |
| Степень очистки | ≥ 97 % |
| Температурный режим | |
| Рабочая температура | 18…24 °C |
| Мощность теплообменника | 56 кВт |
| Электропитание | |
| Питание | 380 В, 3 фазы + N + PE, 50 Гц |
Зона полимеризации состоит из печи ПП3М и прилегающего тамбура (беспылевого помещения), который обеспечивает чистое перемещение окрашенных изделий к печи и исключает попадание пыли на свежее покрытие.
1. Тамбур (беспылевое помещение)
Переходная зона между окрасочной камерой и печью. Обеспечивает беспылевое перемещение изделий в чистую зону перед полимеризацией, что критически важно для качества покрытия.
2. Печь полимеризации ПП3М
Конвекционная печь проходного типа предназначена для термической обработки водорастворимых покрытий на металлических изделиях. Работа основана на равномерном нагреве воздуха ТЭНами с принудительной циркуляцией через вентилятор.
Конструкция включает:
- активный модуль с нагревателями и вентиляторами;
- пассивные секции теплоизоляции (минеральная вата Rockmin, 100 мм);
- вытяжной блок для автоматического удаления летучих продуктов полимеризации;
- сенсорную панель с диагностикой аварий и возможностью ручного тестирования элементов.
Автоматический цикл: разогрев → полимеризация (150–180 °C) → вытяжка → звуковой сигнал завершения.
| Параметр | Значение |
|---|---|
| Габариты и конструкция | |
| Внутренние рабочие размеры (Д × Ш × В) | 2 400 × 1 000 × 1 800 мм |
| Тип конструкции | Проходная модульная печь, конвекционный нагрев |
| Температурный режим | |
| Диапазон рабочих температур | 0–220 °C (в проекте — 150–180 °C) |
| Точность поддержания | Автоматическая, с регулируемым гистерезисом |
| Нагрев и циркуляция | |
| Тип нагрева | Электрический конвекционный (ТЭНы + вентилятор) |
| Теплоизоляция | Минеральная вата Rockmin, 100 мм |
| Автоматизация и управление | |
| Панель управления | Сенсорная, с диагностикой |
| Режимы работы | Разогрев → Полимеризация → Автоматическая вытяжка → Сигнал |
| Электропитание | |
| Питание | 380 В, 3 фазы + N + PE, 50 Гц |
| Гарантия | 12 месяцев |
Все зоны соединены единой подвесной транспортной магистралью. Ручной перенос изделий между операциями исключён.
Каждая технологическая зона оснащена отдельной приточно-вытяжной установкой (ТВШ). Вентиляционная система спроектирована с чётко определёнными точками подключения, что обеспечило быстрое выполнение подготовительных работ со стороны Заказчика.
Общая установленная мощность комплекса — до 140 кВт в циклическом режиме.
Результат — компактная, энергоэффективная линия с полным контролем параметров, стабильным качеством покрытия водорастворимыми эмалями и соответствием требованиям сертифицированной системы менеджмента качества ISO 9001.
Реализация проекта
На основе исходных данных по номенклатуре изделий, условиям эксплуатации и характеристикам лакокрасочных материалов (ЛКМ) был разработан предварительный технический проект, включавший анализ технологии, проработку конструкторской документации и планирование размещения оборудования.
Изготовление комплекса выполнено на производственной базе TWEKO в г. Киеве с использованием комплектующих ведущих европейских производителей (Pedrollo, Camozzi, Omal, ETI, Rockmin). Модульная конструкция позволила адаптировать систему под реальные производственные площади.
Поставка оборудования осуществлялась на условиях DDP, при этом подготовка строительной части (фундаменты, воздуховоды, инженерные коммуникации) выполнялась силами предприятия. После монтажа и пусконаладочных работ комплекс был интегрирован в существующие производственные помещения в виде проходной технологической линии.
Специалисты TWEKO провели обучение персонала и передали полный комплект эксплуатационной документации на механическую, электрическую и вентиляционную части комплекса.
Принцип работы комплекса
Весь технологический цикл построен по проходной схеме с ручным перемещением изделий по подвесной магистрали бесконечного типа:
- Загрузка — изделие подвешивается на поворотную каретку (вращение 360°).
- Обезжиривание и промывка — автоматическое обливание подогретым щелочным раствором с последующей промывкой деминерализованной водой в полуавтоматической камере КМП (2 стадии).
- Промежуточная сушка — интенсивный обдув подогретым очищенным воздухом в зоне с активным полом и приточно-вытяжной вентиляцией.
- Окрашивание — электростатическое нанесение водорастворимой эмали в проходной окрасочной камере с гидрофильтром и водяной завесой (кратность воздухообмена до 200 раз/ч).
- Контроль качества — визуальная проверка покрытия и, при необходимости, локальная подкраска.
- Полимеризация — заключительный этап, выполняемый в электрической конвекционной печи модели ПП-3М. Печь работает в три автоматизированные фазы:
- Разогрев — после нажатия «Старт» включаются нагреватели и конвекционный вентилятор; печь выходит на заданную температуру T.
- Полимеризация — поддержание температуры 150–180 °C в течение времени t₁; нагреватели работают в импульсном режиме, обеспечивая стабильный тепловой баланс.
- Вентиляция — после завершения полимеризации происходит активное удаление летучих продуктов: нагрев отключён, работают конвекционный и вытяжной вентиляторы в течение времени t₂.
После завершения цикла печь автоматически переходит в режим ожидания и подаёт звуковой сигнал.
- Выгрузка — охлаждение и снятие готового изделия.
В составе комплекса реализован автоматизированный контроль температуры, уровня растворов, давления и воздухообмена в основных зонах. Ручное перемещение кареток обеспечивает высокую гибкость при изменении номенклатуры и количества изделий.
Результат проекта
В начале 2020 года окрасочно-сушильный комплекс был успешно введён в промышленную эксплуатацию на производственной площадке ООО «Производственное предприятие „Марио“» в пгт Литин.
Достигнуты все ключевые цели, поставленные Заказчиком ещё в 2019 году:
- Стабильное и воспроизводимое качество покрытия благодаря контролируемым параметрам на всех этапах (температура, время полимеризации, равномерность нанесения в электростатическом поле).
- Полный технологический цикл в одном проходном потоке — от обезжиривания до выгрузки готового изделия без ручного переноса между операциями.
- Высокая экологичность:
◦ очистка выбросного воздуха ≥ 97 % (водяная завеса + гидрофильтр);
◦ рециркуляция и фильтрация технологических растворов;
◦ применение водорастворимых эмалей. - Энергоэффективность и комфорт — поддержание температуры в рабочих зонах +18…+24 °C и 200-кратный воздухообмен в зоне окрашивания.
- Гибкость производства — ручное перемещение по подвесной магистрали и поворотные каретки (360°) позволяют быстро перенастраиваться под различные типы и размеры полотенцесушителей и дизайн-радиаторов.
- Надёжность и сервисопригодность — модульная конструкция и европейские комплектующие (Pedrollo, Camozzi, Omal, ETI, Rockmin) обеспечивают длительную безаварийную эксплуатацию.
- Безопасность персонала — автоматизированные процессы мойки и сушки, локальная вытяжка, датчики и блокировки.
Комплекс работает в штатном режиме с 2020 года и полностью соответствует требованиям сертифицированной на предприятии системы менеджмента качества ISO 9001.
Вывод
Реализованная линия для производственного предприятия «Марио» — это современное, экологичное и гибкое решение, обеспечивающее стабильно высокое качество декоративного покрытия водорастворимыми эмалями и эффективную очистку воздуха (≥97 %). Комплекс соответствует требованиям сертифицированной системы менеджмента качества ISO 9001, оптимизирует энергопотребление (до 138 кВт в циклическом режиме) и бесперебойно эксплуатируется с 2020 года.
Проект модернизации для предприятия «Марио» наглядно демонстрирует экспертность TWEKO в разработке энергоэффективных технологических комплексов для нанесения декоративных лакокрасочных покрытий на изделия из нержавеющей стали. Команда открыта к реализации аналогичных решений и дальнейшему сотрудничеству.
Требуется предсказуемое качество декоративного покрытия на нержавеющей стали без повторных окрашиваний и изменения цвета?
Окрасочные комплексы TWEKO гарантируют контролируемый микроклимат в зоне окрашивания и очистку выбросов в соответствии с экологическими нормами. Конфигурация системы полностью адаптируется под параметры вашего производства.







