Для ООО «Спец-Ком-Сервис» компания TWEKO реализовала интегрированный малярный комплекс замкнутого цикла, включающий дробеметную камеру KASO, две окрасочно-сушильные камеры IKFS и два поста подготовки APP. Решение обеспечило полный цикл подготовки поверхности, окраски и сушки крупногабаритных изделий длиной до 15 м в рамках единого производственного потока и повысило стабильность качества покрытий и пропускную способность участка.
О клиенте
ООО «Спец-Ком-Сервис» (С-К-С) — украинский производитель специализированной и коммерческой техники под торговой маркой PolyCar. Предприятие осуществляет проектирование, изготовление и дооборудование транспортных средств на базе шасси MAN, IVECO, Volvo, Renault, Hyundai и других производителей в соответствии с индивидуальными техническими заданиями заказчиков.
Основными направлениями деятельности являются производство техники для коммунального хозяйства, аграрного сектора, инфраструктурных служб и государственных структур. Продукция компании включает специальные автомобили, мобильные комплексы и функциональные надстройки, изготавливаемые с учетом отраслевых стандартов и эксплуатационных требований.
Производственный процесс предусматривает изготовление сложных металлоконструкций надстроек с применением сварочных, слесарных и механических операций, а также последующую антикоррозионную обработку и нанесение лакокрасочных покрытий. Габариты отдельных изделий достигают 15 метров в длину, что формирует повышенные требования к качеству абразивоструйной очистки, равномерности нанесения материалов, стабильности воздушных потоков в окрасочных камерах и точности температурных режимов сушки.
Масштаб изделий и растущие объемы производства потребовали создания единого интегрированного технологического комплекса, способного обеспечить замкнутый цикл подготовки поверхности и нанесения покрытий в рамках одного производственного потока. До реализации проекта эти процессы выполнялись отдельными участками без полной интеграции в единую систему, что ограничивало производительность и усложняло обеспечение стабильных технологических параметров.
Задачи проекта
Целью проекта было создание интегрированного малярного участка с полным технологическим циклом подготовки поверхности, окраски и сушки крупногабаритных металлоконструкций в рамках одного производственного потока.
Предприятие нуждалось в решении, способном обеспечить стабильное качество абразивоструйной очистки с замкнутым циклом использования абразива, равномерное нанесение лакокрасочных материалов в контролируемой воздушной среде и поддержание заданных температурных режимов сушки.
Отдельными задачами были повышение пропускной способности малярного участка, возможность параллельной работы на разных этапах обработки и минимизация внутрицеховых перемещений крупногабаритных изделий.
Проект также предусматривал техническое переоснащение части существующего здания, разработку рабочей документации реконструкции и подготовку инженерной инфраструктуры для интеграции оборудования в действующий производственный процесс.

Решение
Для реализации поставленных задач было внедрено комплексное технологическое решение, включающее дробеструйную камеру для абразивной очистки серии КАСО от TWEKO, окрасочно-сушильные камеры серии IKFS и подъемно-перемещаемые платформы серии 3PtO для безопасного доступа к верхним зонам крупногабаритных изделий во время нанесения покрытий, а также отдельные посты подготовки APP. Оборудование интегрировано в единую производственную цепочку с последовательным прохождением этапов очистки, подготовки, окраски и сушки.
- Дробеметная камера абразивоструйной очистки
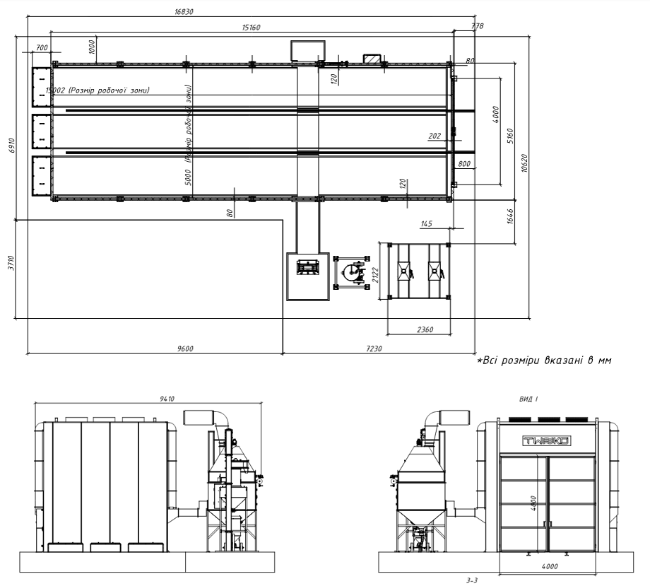
Для этапа подготовки поверхности мы спроектировали, изготовили и выполнили полный монтаж камеры абразивоструйной очистки серии KASO — модель KASO-15, предназначенную для абразивоструйной обработки крупногабаритных металлоконструкций длиной до 15 000 мм, обеспечивающую качественную и равномерную очистку крупногабаритных металлоконструкций перед нанесением лакокрасочных покрытий. Камера имеет внутренние габариты рабочей зоны 15 000 × 5 000 × 5 000 мм. Конструкция выполнена из сэндвич-панелей толщиной 80 и 60 мм. В зоне абразивного воздействия предусмотрена внутренняя защитная облицовка.
Система сбора и регенерации металлической дроби реализована по замкнутому циклу и включает:- Механизированный скребковый пол размером 14 500 × 5 000 мм с продольными и поперечным транспортными модулями.
- Пневмопривод с электрическим управлением для перемещения абразива.
- Ковшовый элеватор (нория) для вертикального транспортирования дроби.
- Сепаратор для отделения пыли и посторонних примесей.
- Бункер накопления очищенной дроби с возвратом в рабочий цикл.
Для удаления пыли во время очистки камера оснащена фильтровентиляционной установкой ФВУ-30, включающей корпус из гнутых панелей, картриджные фильтрующие элементы и импульсную систему регенерации фильтров с бункером для сбора пыли.
Управление работой камеры осуществляется через электрический пульт с системой автоматики и контроля, который включает прессостат, счетчик наработки, магнитные пускатели, автоматические выключатели и тепловые реле. Предусмотрен контроль работы механизмов системы регенерации абразива и вентиляции.
Конфигурация камеры адаптирована к интеграции в существующую производственную инфраструктуру предприятия и рассчитана на промышленную эксплуатацию с интенсивной нагрузкой.
- Окрасочно-сушильные камеры
Для выполнения операций нанесения лакокрасочных покрытий и сушки крупногабаритных изделий в составе комплекса были спроектированы, изготовлены и смонтированы две окрасочно-сушильные камеры серии IKFS — модели IKFS-15.
Каждая камера имеет внутренние габариты рабочей зоны 15 000 × 5 500 × 6 000 мм. Конструкция выполнена из сэндвич-панелей толщиной 80 и 60 мм с теплоизоляционным наполнением. Камеры оснащены подъемно-перемещаемыми платформами для маляра, въездными воротами размером 3 500 × 4 200 мм и дверями для персонала. Система вентиляции организована по принципу ламинарного нисходящего воздушного потока с подачей очищенного приточного воздуха через потолочные фильтры и отбором через напольные решетки с двухступенчатой фильтрацией класса EU3.
Каждая камера оборудована:- Приточным термовентиляционным шкафом с теплообменником и дизельной горелкой.
- Вытяжным вентиляционным шкафом с клапанами выброса воздуха с пневмоприводом.
- Фильтрами предварительной очистки и рециркуляции воздуха.
- Газосигнализатором довзрывной концентрации.
- Системой промышленного освещения LED 4×18 Вт (верхние угловые и стеновые светильники).
Пульты управления оснащены системой автоматики и контроля, включающей частотные преобразователи вентиляционных установок, прессостат, датчики рабочей и критической температуры, терморегулятор для установки режима сушки, счетчик наработки, магнитные пускатели и автоматические выключатели.
Логика управления предусматривает возможность зонального использования рабочего пространства с отдельным управлением термовентиляционными шкафами, что позволяет адаптировать режим работы к габаритам изделий.
Для организации безопасного доступа оператора к верхним зонам изделий во время нанесения покрытий в составе комплекса предусмотрены подъемно-перемещаемые платформы для маляра.
Две независимые камеры обеспечивают параллельную работу и увеличение пропускной способности малярного участка без взаимного влияния режимов эксплуатации.
- Посты подготовки серии APP
Для выполнения операций подготовки поверхности и локального нанесения лакокрасочных материалов в составе комплекса реализовано два поста подготовки серии APP в исполнениях разной длины — APP-7 и APP-10.
Посты выполнены в виде металлокаркасных модульных конструкций с системой ограждающих штор на направляющих и имеют одинаковые габариты по ширине и высоте, отличаясь длиной рабочей зоны, что обеспечивает адаптацию под разные габариты изделий и логистику участка.- APP-7: габаритная длина конструкции — 7 753,8 мм; габаритная высота — 4 200 мм; высота рабочего проема — 4 010 мм; габаритная ширина — 4 200 мм; ширина рабочего проема — 3 480 мм.
- APP-10: габаритная длина конструкции — 10 277 мм; габаритная высота — 4 200 мм; высота рабочего проема — 4 010 мм; габаритная ширина — 4 200 мм; ширина рабочего проема — 3 480 мм.
Каждый пост укомплектован инженерными и технологическими узлами согласно спецификации:- рециркуляционной вентиляционной установкой с электродвигателем;
- шиберным устройством с пневмоприводом для управления воздушными потоками;
- комплектом фильтров выброса, подачи и предварительной очистки;
- пультом управления с системами автоматики и контроля;
- счетчиком моточасов;
- комплектом напольных решеток с допустимой нагрузкой до 800 кг/колесо;
- верхними угловыми светильниками LED T8 1200 × 4 × 18 Вт.
Применение двух постов APP обеспечивает возможность параллельного выполнения подготовительных операций и локальной окраски без остановки основных камер, а также повышает общую пропускную способность малярного участка.
Технические характеристики
| Компонент | KASO-15 | IKFS-15 (2 камеры) | APP (2 поста) |
|---|---|---|---|
| Общие характеристики | |||
| Тип оборудования | Дробеметная камера абразивоструйной очистки | Окрасочно-сушильная камера | Пост подготовки с рециркуляцией |
| Количество | 1 комплект | 2 комплекта | 2 комплекта |
| Габариты рабочей зоны | |||
| Внутренние размеры (Д × Ш × В) | 15 000 × 5 000 × 5 000 мм | 15 000 × 5 500 × 6 000 мм | 7 000 × 4 000 × 5 000 мм |
| Конструктив | |||
| Ограждающие конструкции | Сэндвич-панели 80/60 мм, внутренний периметр с износостойким покрытием | Сэндвич-панели 80/60 мм | Металлокаркас с направляющими и ограждающими шторами |
| Пол | Механизированный скребковый пол 14 500 × 5 000 мм | Двухступенчатая фильтрация EU3 с напольными решетками | Решетки, нагрузка до 800 кг/колесо |
| Технологические системы | |||
| Система регенерации абразива | Скребковый транспортер + поперечный модуль + ковшовый элеватор (нория) + сепаратор + бункер | — | — |
| Фильтрация воздуха | Фильтровентиляционная установка ФВУ-30 с импульсной очисткой картриджей | Фильтры подачи, потолочные фильтры, напольные фильтры | Фильтры подачи, предварительной очистки и выброса |
| Нагрев | Не предусмотрено | Термовентиляционные шкафы с дизельной горелкой (4-ходовой теплообменник) | Не предусмотрено |
| Вентиляция | |||
| Тип вентиляции | Фильтровентиляционная с аспирацией | Приточно-вытяжная с возможностью зонального управления ТВШ | Рециркуляционная вентиляционная установка |
| Автоматика и управление | |||
| Пульт управления | Контроль работы двигателей, нории, сепаратора, ФВУ, индикация аварий | Автоматика контроля температуры, прессостаты, частотные преобразователи, зональное управление ТВШ | Пульт управления с системой автоматики и счетчиком моточасов |
| Газоконтроль | — | Газосигнализатор довзрывной концентрации | — |
| Электропитание | |||
| Питание оборудования | 380 В / 50 Гц | 380 В / 50 Гц | 380 В / 50 Гц |
| Освещение | LED T8 1200 × 4 × 18 Вт (верхние угловые) | LED 4 × 18 Вт (20 верхних + 12 стеновых светильников) | LED T8 1200 × 4 × 18 Вт |
Реализация проекта
Реализация проекта выполнялась как комплексное техническое переоснащение части существующего производственного здания с интеграцией дробеметной камеры KASO-15, двух окрасочно-сушильных камер IKFS-15 и двух постов подготовки APP в единый технологический поток. Работы охватывали проектирование, разработку рабочей документации, изготовление оборудования, монтаж, интеграцию инженерных систем и пусконаладку.
На первом этапе выполнено инструментальное обследование помещения и разработано компоновочное решение малярного участка с учетом габаритов изделий до 15 000 мм, логики перемещения техники и размещения инженерных систем.
- определена геометрия фундаментных приямков под механизированный скребковый пол KASO-15;
- проработано расположение окрасочно-сушильных камер и термовентиляционных шкафов IKFS-15;
- согласована трассировка воздуховодов, зон выброса и рециркуляции воздуха;
- определены точки подключения электропитания и пневмосистем.
Проектные решения формировались с учетом интеграции оборудования в существующую инфраструктуру предприятия без остановки основного производства.
- чертежи кабины дробеметной камеры KASO-15 (15 000 × 5 000 × 5 000 мм);
- документацию на скребковый пол 14 500 × 5 000 мм с продольными и поперечными модулями;
- чертежи нории, сепаратора и бункера накопления дроби;
- чертежи двух камер IKFS-15 (15 000 × 5 500 × 6 000 мм);
- схемы приточно-вытяжной вентиляции и теплотехнических узлов;
- конструкторскую документацию на посты подготовки APP (7 000 × 4 000 × 5 000 мм).
Документация стала основой для изготовления металлоконструкций, инженерных узлов и координации монтажных работ.
- производство металлоконструкций кабин KASO и IKFS из сэндвич-панелей 80/60 мм;
- изготовление узлов системы регенерации абразива (скребковый транспортер, нория, сепаратор, бункер);
- комплектацию ФВУ-30 с картриджными фильтрами и импульсной системой очистки;
- изготовление термовентиляционных шкафов с дизельными горелками и 4-ходовыми теплообменниками;
- изготовление и комплектацию перемещаемой платформы маляра;
- подготовку электрических шкафов управления и автоматики.
Оборудование проходило внутренний контроль качества перед отгрузкой на объект.
- монтаж каркасов и ограждающих конструкций камер;
- установка механизированного скребкового пола и транспортных модулей;
- монтаж нории, сепаратора и бункера дроби;
- установка ФВУ-30 и аспирационных воздуховодов;
- монтаж термовентиляционных шкафов IKFS и систем рециркуляции;
- установка постов подготовки APP с рециркуляционными вентиляционными установками;
- прокладка электрических и пневматических коммуникаций;
- интеграцию пультов управления и систем автоматики.
Монтаж выполнен с учетом требований к герметичности, жесткости конструкций и правильности работы воздушных потоков.
- проверку работы механизированной системы регенерации абразива;
- наладку параметров аспирации ФВУ-30;
- настройку температурных режимов IKFS и зонального управления ТВШ;
- проверку работы газосигнализаторов довзрывной концентрации;
- тестирование режимов окраски, сушки и рециркуляции воздуха;
- инструктаж персонала заказчика.
После завершения пусконаладочных работ комплекс был введен в промышленную эксплуатацию как единый замкнутый малярный участок с дробеметной подготовкой поверхности, окраской и сушкой крупногабаритной техники.
Ключевые узлы комплекса
| Узел / система | Техническая реализация |
|---|---|
| Рабочие камеры | Комплекс включает дробеметную камеру KASO-15 (внутренние размеры 15 000 × 5 000 × 5 000 мм), две окрасочно-сушильные камеры IKFS-15 (15 000 × 5 500 × 6 000 мм) и два поста подготовки APP (7 000 × 4 000 × 5 000 мм). Кабины выполнены из сэндвич-панелей толщиной 80/60 мм. Внутренний периметр KASO имеет износостойкое покрытие. Конструкция APP — металлокаркас с направляющими и ограждающими шторами. |
| Ворота и доступ | KASO-15 оснащена въездными воротами 3 500 × 3 500 мм и сервисными дверями 850 × 1 900 мм. Камеры IKFS-15 имеют ворота 3 500 × 4 200 мм и двери 800 × 1 900 мм. Конструктив APP предусматривает открытый фронт доступа. |
| Скребковый пол | Механизированная система сбора абразива размером 14 500 × 5 000 мм: 5 продольных модулей 14 500 × 900 × 110 мм и 1 поперечный модуль 4 500 × 800 × 1 500 мм. Привод — пневматический с электрическим управлением. |
| Система регенерации абразива | Включает ковшовый элеватор (норию), сепаратор дроби и резервуар накопления. Сепаратор обеспечивает механическое отделение пыли и примесей с возвратом очищенной дроби в рабочий цикл. |
| Фильтровентиляционная установка KASO | ФВУ-30 с корпусом из гнутых панелей, картриджными фильтрующими элементами, импульсной системой автоматической очистки и бункером сбора пыли. |
| Приточно-вытяжная система IKFS | Термовентиляционные шкафы приточного типа с теплообменником и дизельной горелкой. 4-ходовой теплообменник из жаростойкой стали. Клапаны подачи и рециркуляции воздуха с пневмоприводом. Отдельный вытяжной вентиляционный шкаф с клапанами выброса. |
| Система фильтрации IKFS | Фильтры предварительной очистки, потолочные фильтры тонкой очистки и напольные фильтры (двухступенчатая схема очистки класса EU3). |
| Рециркуляционная вентиляция APP | Рециркуляционная вентиляционная установка с электродвигателем, комплект фильтров подачи, предварительной очистки и выброса, шиберное устройство с пневмоприводом. |
| Напольные решетки | IKFS — двухступенчатая фильтрация с напольными кассетами. APP — решетки с максимально допустимой нагрузкой 800 кг на колесо. |
| Автоматика и управление | Пульты управления KASO, IKFS и APP с магнитными пускателями, автоматическими выключателями и тепловыми реле. IKFS оснащена частотными преобразователями (3 шт.), прессостатом, датчиком рабочей и критической температуры, терморегулятором, счетчиком наработки. Предусмотрено зональное управление ТВШ. IKFS оборудована газосигнализатором довзрывной концентрации. |
| Подъемно-перемещаемая платформа маляра | В составе комплекса предусмотрены две подъемно-перемещаемые платформы для маляра для выполнения окрасочных работ с доступом к верхним зонам крупногабаритных изделий в рабочем пространстве камер IKFS. |
| Освещение | Светильники LED T8 1200 × 4 × 18 Вт. В KASO — 20 верхних угловых светильников. В IKFS — 20 верхних и 12 стеновых. APP — верхние угловые светильники аналогичного типа. |
| Электропитание | Питание оборудования — 380 В / 50 Гц. Освещение — 220 В / 50 Гц. |
Результат для заказчика
Внедрение интегрированного малярного комплекса позволило ООО «Спец-Ком-Сервис» сформировать полностью замкнутый технологический цикл подготовки поверхности, окраски и сушки крупногабаритных изделий в рамках одной производственной площадки.
Комплекс, включающий камеру абразивоструйной очистки KASO-15, две окрасочно-сушильные камеры IKFS-15 и два поста подготовки APP, обеспечил системную интеграцию механики, вентиляции, теплотехники и автоматики в единую производственную инфраструктуру.
Стабильность качества покрытий
Механизированная система регенерации абразива, эффективная аспирация ФВУ-30 и контролируемые параметры воздухообмена в IKFS-15 обеспечили повторяемость результата дробеметной очистки и стабильные условия нанесения лакокрасочных материалов.
- равномерная подготовка поверхности после дробеметной обработки;
- контроль температурных режимов сушки;
- снижение влияния человеческого фактора благодаря автоматизированным системам управления;
- стабильные параметры воздушной среды в окрасочных камерах.
Повышение производительности
Наличие двух автономных камер IKFS-15 и двух постов подготовки APP позволяет организовать параллельную обработку нескольких изделий разной степени готовности.
- одновременная работа нескольких технологических зон;
- вынос подготовительных операций за пределы окрасочных камер;
- непрерывный цикл дробеметной обработки с автоматическим возвратом абразива;
- оптимизированная логистика перемещения изделий в пределах цеха.
Контроль и безопасность
Система автоматики обеспечивает контроль основных параметров работы оборудования и блокирует недопустимые режимы эксплуатации.
- мониторинг температуры и давления воздуха;
- контроль работы транспортных механизмов KASO;
- газосигнализация довзрывной концентрации в IKFS;
- индикация аварийных состояний.
Производственный эффект
Создание единого малярного участка с абразивоструйной подготовкой поверхности позволило предприятию выполнять полный цикл антикоррозионной защиты крупногабаритных изделий длиной до 15 метров в штатном промышленном режиме.
Комплекс функционирует как целостная технологическая система, обеспечивающая прогнозируемое качество покрытий, стабильность процессов и готовность к серийному производству специализированной автомобильной техники.
Заключение
Проект для ООО «Спец-Ком-Сервис» стал примером комплексного инженерного подхода к модернизации малярного участка для производителя крупногабаритной специализированной техники. Реализованный комплекс объединил абразивоструйную подготовку поверхности, окраску и сушку в единую технологическую систему с согласованными режимами работы механических, вентиляционных, теплотехнических и автоматизированных узлов.
Интеграция KASO-15, двух IKFS-15 и двух постов APP обеспечила предприятию полный контроль над качеством антикоррозийной защиты и финишного покрытия, стабильность технологических параметров и возможность масштабирования производства без привлечения внешних подрядчиков.
Комплекс работает как инфраструктурная часть производства — не отдельные камеры, а системно интегрированный малярный участок, адаптированный к интенсивной эксплуатации, крупногабаритным изделиям и требованиям серийного выпуска специальной автомобильной техники.
Реализация этого проекта подтверждает компетенцию TWEKO в создании полноценных технологических решений для предприятий машиностроения и производителей специализированной техники.
Реализуем комплексное решение для вашего производства
TWEKO проектирует и внедряет интегрированные малярные комплексы для предприятий машиностроения, производителей металлоконструкций и специализированной техники. Мы работаем с полным циклом — от предпроектных изысканий и разработки рабочей документации до изготовления, монтажа и ввода в промышленную эксплуатацию.
Если ваше предприятие нуждается в модернизации участка подготовки поверхности и окраски или планирует запуск нового производственного комплекса — наши инженеры подготовят техническое решение с учетом габаритов изделий, логистики цеха и производственных нагрузок.








