TWEKO реализовала покрасочный пост с вытяжными зондами для LTL Group (Киев, Украина) в феврале 2013 года. Комплекс для лаборатории приготовления лакокрасочных материалов обеспечил комфортные условия для операторов при создании выставочных образцов лакокрасочного покрытия (ЛКП).
О клиенте
Компания LTL Group — ведущий импортер высококачественных лакокрасочных материалов, расположенный в г. Киев. Для обустройства лаборатории («кухни») по приготовлению ЛКП предприятие обратилось к TWEKO с необходимостью создания оборудования, обеспечивающего комфортные и безопасные условия для операторов при работе с выставочными образцами. Узнайте, как заказать покрасочное оборудование для вашей лаборатории!
Задачи проекта
Целью проекта было создание условий для работы операторов в лаборатории приготовления лакокрасочных материалов путем обустройства покрасочного поста с двумя рабочими местами и вытяжными зондами. Основные требования включали:
- Разработка двух покрасочных стендов с сухой фильтрацией для нанесения лакокрасочных покрытий на образцы.
- Создание двух вытяжных зондов для улавливания и очистки паров ЛКП.
- Интеграция оборудования в единую систему с одной вытяжной вентиляционной установкой для экономии средств.
- Обеспечение удобства эксплуатации (съемные фильтры, поворотные столы) и безопасности.
- Соответствие стандартам для работы с лакокрасочными материалами в лабораторных условиях.
Решение от компании TWEKO: покрасочный пост с вытяжными зондами
TWEKO, согласно договору, разработала и смонтировала «под ключ» покрасочный пост с сухой фильтрацией и два вытяжных зонда для лаборатории LTL Group. Комплекс адаптирован к условиям помещения для приготовления лакокрасочных материалов. Основные элементы решения:
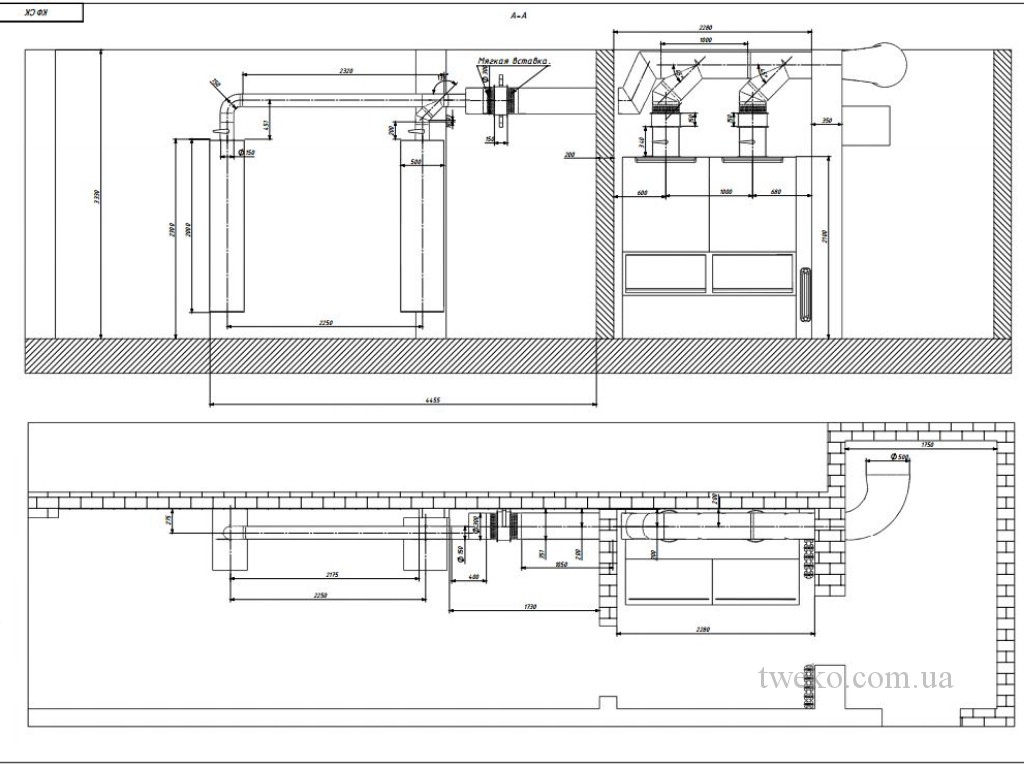
- Покрасочный пост с сухой фильтрацией. Два рабочих места в виде аспирационных шкафов, изготовленных из металлического каркаса (профильные трубы и уголки), обшитого стальным листом с защитным ударопрочным лакокрасочным покрытием. Каждый шкаф оснащен поворотным столом для удобного нанесения ЛКП на изделия и съемной фильтровальной кассетой для быстрой замены фильтровального материала.
- Вытяжные зонды. Два трапециевидных короба из оцинкованной стали для улавливания, очистки и выброса паров ЛКП, образующихся при смешивании и перемешивании материалов. Фронтальная часть зондов защищена металлической сеткой для предотвращения попадания крупных предметов.
- Вентиляционная система. Оба покрасочных стенда и вытяжных зонда соединены воздуховодами выброса в единую линию, оснащенную шиберными заслонками для регулирования воздушного потока. Вытяжная вентиляционная установка с электродвигателем (производительность до 10 000 м³/ч) расположена за пределами помещения, что обеспечило экономию средств благодаря единой системе вытяжки.
- Безопасность и удобство. Металлическая сетка на зондах, ударопрочное покрытие шкафов и съемные фильтры гарантируют безопасную и комфортную работу операторов. Система соответствует стандартам для лабораторий с лакокрасочными материалами.
Комплект дополнен проектной документацией, а монтаж и подготовка к вводу в эксплуатацию выполнены в соответствии с техническим заданием заказчика.
Ход реализации
Запрос от LTL Group поступил в октябре 2012 года. TWEKO провела анализ условий лаборатории, учитывая требования к работе с лакокрасочными материалами.
Проектирование включало разработку покрасочного поста с двумя рабочими местами и вытяжных зондов, интегрированных в единую вентиляционную систему. Изготовление компонентов (каркасы, зонды, воздуховоды) велось с ноября 2012 по январь 2013 года.
- Изготовление двух покрасочных стендов с поворотными столами и фильтровальными кассетами.
- Создание двух вытяжных зондов из оцинкованной стали с металлической сеткой.
- Монтаж единой вентиляционной системы с установкой производительностью 10 000 м³/ч и шиберными заслонками.
- Интеграция оборудования в помещение лаборатории с учетом ограничений.
Монтаж и пусконаладка завершены в феврале 2013 года. Оборудование введено в эксплуатацию после сборки и проверки, что обеспечило соответствие условиям договора и техническому заданию.
Результаты для заказчика
- Комфортные условия для операторов благодаря эффективному улавливанию паров ЛКП вытяжными зондами.
- Удобство нанесения покрытий за счет поворотных столов и съемных фильтров.
- Экономия средств благодаря единой вытяжной вентиляционной установке с производительностью 10 000 м³/ч.
- Безопасность работы обеспечена металлической сеткой, ударопрочным покрытием и соответствием стандартам.
- Оптимизация пространства лаборатории благодаря компактной интеграции оборудования.
Отзыв клиента
Руководитель лаборатории, LTL Group
Вывод
Проект для LTL Group, реализованный в феврале 2013 года, продемонстрировал экспертизу TWEKO в разработке покрасочных постов и вентиляционных систем для лабораторий. Комплекс с двумя покрасочными стендами и вытяжными зондами обеспечил комфорт, безопасность и эффективность. Технологии проекта соответствуют серийному оборудованию серии FPS.
Покрасочный пост с сухой фильтрацией: серия FPS
Покрасочный пост с сухой фильтрацией ФПС от TWEKO — это современное решение для лабораторий и промышленных объектов, требующих качественного нанесения лакокрасочных покрытий. Система включает аспирационные шкафы с поворотными столами, съемные фильтровальные кассеты и интегрированную вентиляцию с вытяжными зондами, обеспечивающими чистый микроклимат и безопасность. Серия ФПС идеально подходит для автосервисов, лабораторий и производств, где важны компактность, энергоэффективность и соответствие стандартам. TWEKO адаптирует оборудование под индивидуальные потребности клиентов, обеспечивая оптимальные условия работы.

