В 2018 году TWEKO реализовала комплексный проект по поставке оборудования для абразивоструйной камеры для украинского промышленного предприятия «Бадор» в селе Белая Тернопольской области. Установленная абразивоструйная камера значительно повысила эффективность обработки поверхностей полуприцепов и кузовов, оптимизировала производственные процессы и снизила затраты компании.
О клиенте
Компания «Бадор», основанная в 2000 году в селе Белая Тернопольской области, является одним из ведущих производителей полуприцепов и кузовов в Украине. За годы деятельности предприятие завоевало репутацию надежного партнера в сфере ремонта и модернизации грузового автотранспорта. В своей работе «Бадор» сочетает высокий технический уровень с широким спектром услуг: от изготовления полуприцепов на заказ и восстановления автомобилей после ДТП до сварочных работ, пескоструйной обработки, плазменной резки металла и окраски. Постоянное совершенствование технологий и стремление к повышению качества производства стали основой для сотрудничества с TWEKO — в 2018 году мы реализовали для компании индивидуальный проект абразивоструйной камеры.
Задачи проекта
Целью проекта было создание эффективной абразивоструйной камеры для обработки поверхностей в пределах существующего помещения размером 15×6×6 метров. Клиент нуждался в комплексном решении, которое обеспечивало бы:
- Автоматизированный сбор и регенерацию абразивного материала для снижения затрат.
- Эффективное удаление пыли для создания безопасных условий труда.
- Высокую производительность дробеструйного оборудования для работы с полуприцепами и кузовами.
- Адаптацию системы к ограничениям помещения и интеграцию с существующими производственными процессами.
Проект должен был быть выполнен в сжатые сроки — с апреля по май 2018 года, чтобы минимизировать простои в производстве.
Решение от TWEKO: Абразивоструйная камера
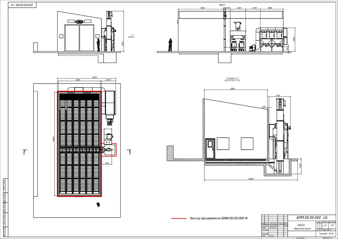
Решение было разработано инженерно-техническим отделом TWEKO с учетом всех требований заказчика и специфики производства. Компания спроектировала и внедрила индивидуальную абразивоструйную камеру с автоматизированной системой сбора, регенерации абразива и мощной фильтровентиляционной системой. В качестве основы камеры использовалось существующее помещение заказчика размером 15×6×6 м, а TWEKO установила комплекс пескоструйного оборудования. Основные компоненты:
- Скребковый пол. Система состоит из шести продольных модулей длиной 15 м и одного поперечного модуля, расположенного в центре камеры. Продольные модули соскребают абразив и пыль с пола и направляют их к поперечному модулю, который транспортирует материал в приямок под норией.
- Система регенерации абразива. Включает норию высотой 7,5 м, сепаратор и бункер-накопитель объемом 1 м³. Нория, оснащенная мотор-редуктором и лентой с ковшами, поднимает смесь дроби и пыли из приямка на высоту 7 м, где материал поступает в сепаратор. Сепаратор отделяет крупные загрязнения и пыль, оставляя чистую дробь, которая накапливается в бункере и подается к абразивоструйным аппаратам в полуавтоматическом режиме.
- Фильтровентиляционная установка (ФВУ). Высокопроизводительная установка с воздушным потоком 27 500 м³/ч, оснащенная 27 фильтрующими картриджами с автоматической очисткой сжатым воздухом. Система эффективно очищает камеру от пыли, поддерживая безопасную рабочую среду.
Скребковый пол работает автоматически: продольные модули транспортируют абразив и пыль к поперечному модулю, который направляет их в приямок. Оттуда нория поднимает смесь на высоту 7 м к сепаратору, который отсеивает загрязнения, возвращая чистый абразив в бункер объемом 1 м³. Очищенная дробь подается к абразивоструйным аппаратам в полуавтоматическом режиме, обеспечивая непрерывный цикл обработки. Фильтровентиляционная система гарантирует экологичность и безопасность, соответствуя стандартам промышленной безопасности.
Реализация проекта
TWEKO выполнила проект «под ключ» — от проектирования до пусконаладочных работ. Работы начались в апреле 2018 года после детального анализа помещения и технических требований заказчика. Основные этапы:
- Проектирование: Разработка схемы размещения дробеструйного оборудования с учетом габаритов помещения (15×6×6 м).
- Изготовление: Производство скребкового пола (6 продольных модулей по 15 м и 1 поперечный), нории высотой 7,5 м, сепаратора, бункера объемом 1 м³ и вентиляционной системы на собственной производственной базе TWEKO.
- Монтаж: Установка оборудования, интеграция с существующими системами и настройка автоматики для бесперебойной работы.
- Пусконаладка: Тестирование всех компонентов, обучение персонала «Бадор» и ввод камеры дробеструйной обработки в эксплуатацию.
Монтаж и пусконаладочные работы завершились в мае 2018 года, что позволило клиенту вовремя начать производство. Оборудование было оптимально адаптировано к потребностям «Бадор», обеспечивая удобный доступ к полуприцепам и кузовам.
Результаты для клиента
- Повышение эффективности обработки поверхностей благодаря автоматизированной абразивоструйной камере.
- Снижение затрат на абразивный материал до 80% за счет системы регенерации.
- Улучшение условий труда благодаря мощной фильтровентиляционной системе с производительностью 27 500 м³/ч.
- Стабильная и бесперебойная работа оборудования, обеспечивающая высокую производительность производства.
Отзыв клиента
Николай Николаевич, владелец компании «Бадор»
Вывод
Проект для «Бадор» был успешно завершен в мае 2018 года, подтвердив способность TWEKO создавать надежные и адаптированные к специфическим условиям абразивоструйные камеры. Система обеспечивает высокую производительность, экономию ресурсов и безопасность, что делает ее идеальным решением для обработки крупногабаритных конструкций, таких как полуприцепы и кузова. TWEKO благодарит «Бадор» за доверие и готова предоставлять инновационные решения для украинских промышленных предприятий.
Абразивоструйная камера KASO от TWEKO
Для предприятий, ищущих эффективные решения для струйной обработки, TWEKO предлагает камеру дробеструйной обработки KASO (узнать больше). Эта камера предназначена для высококачественной очистки поверхностей от ржавчины, старой краски и других загрязнений. Основные преимущества KASO:
- Автоматизированная система сбора абразива: Скребковый пол и нория обеспечивают быстрый сбор и регенерацию материала.
- Мощная вентиляция: Фильтровентиляционная установка с автоматической очисткой фильтров гарантирует чистый воздух в камере.
- Модульная конструкция: Камера адаптируется к различным размерам помещений и потребностям производства.
- Экономичность: Система регенерации абразива снижает затраты на материалы до 80%.
Камера KASO идеально подходит для обработки металлоконструкций, полуприцепов, кузовов и других крупногабаритных изделий. Она сочетает надежность, экологичность и высокую производительность, что делает ее популярным выбором среди промышленных предприятий. Свяжитесь с TWEKO, чтобы получить подробную консультацию и коммерческое предложение для вашего производства!

